About
CV
Kontakt
Werkliste
Projektauswahl
About
CV
Kontakt
Werkliste
Projektauswahl
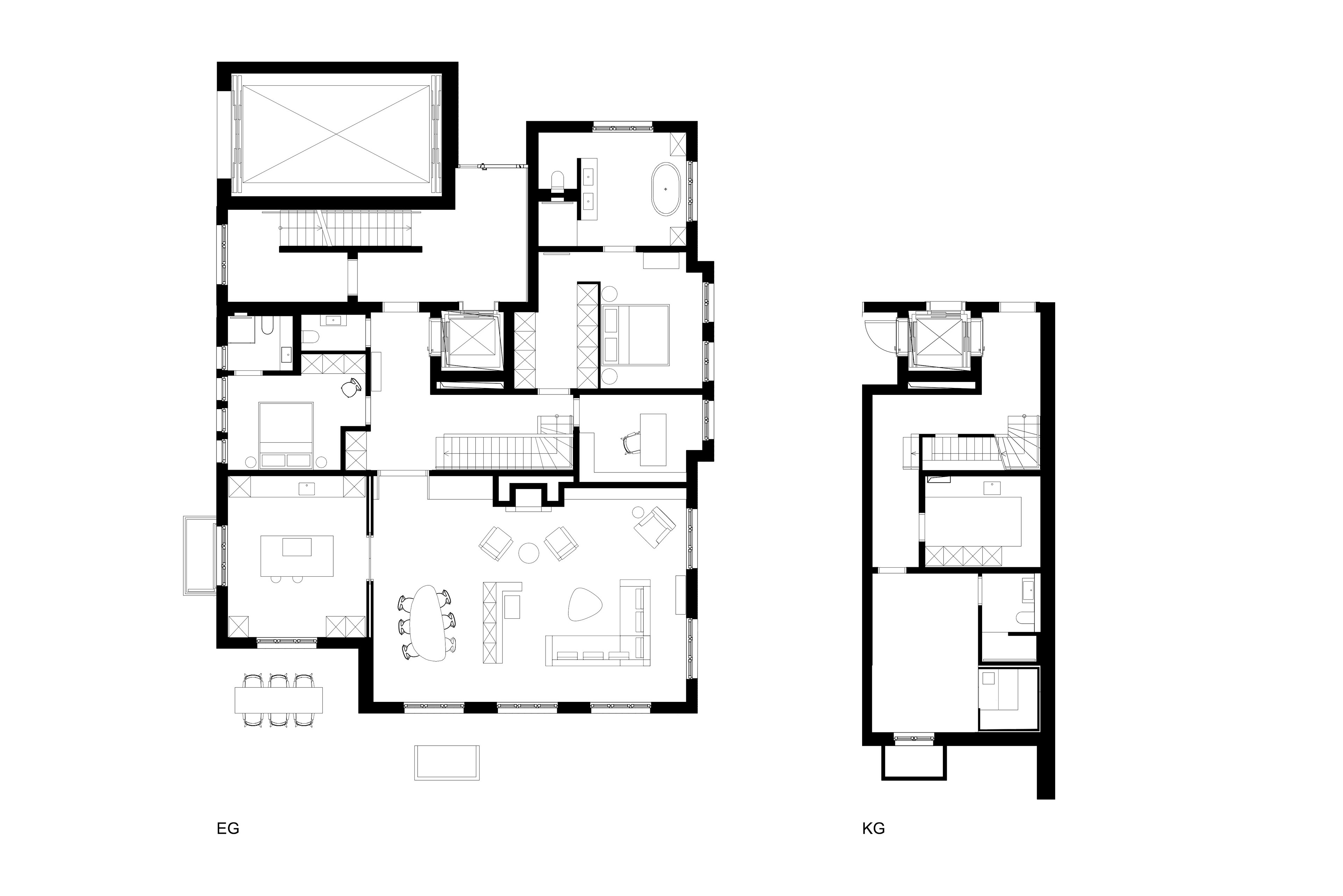
Wohnung München
2019
Neubau Mehrfamilienhaus
Leistungen: Planung Grundriss und Ausbau Wohnung EG, Lichtplanung (Vor- und Bauprojekt)
Fläche: 220m2
Visualisierung Masterbad: Matthias Mayr